


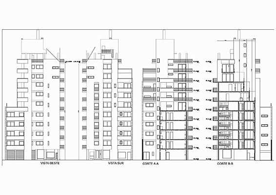
EDIFICIO DE DEPARTAMENTOS MYA
Montevideo 296 (esquina Ayacucho) Ciudad de Rosario, Argentina
Proyecto y ejecución de obra.
Edificio de departamentos de uno y dos dormitorios, pisos exclusivos. Local en planta baja y nueve pisos. Terraza y detalles de terminación de categoría.
Características:
- Superficie: 1650 m2 cubiertos
- Local comercial
- 8 Deptos. de 2 Dormitorios
- 2 Deptos. de 1 Dormitorio
- Semipisos de 1 y 2 dorm. y Pisos exclusivos
- Materiales de calidad, excelentes terminaciones y detalles
- Aberturas aluminio color
- Finas yeserías en cielorrasos en living y dormitorios
- Pisos de madera flotante laminados en living y dormitorios
- Cocina con muebles de última generación
- Placares totalmente terminados con finos interiores revestidos con cajoneras
- Mesadas de Granito con bachas de acero Johnson
- Cortinas de enrollar en dormitorios
- Instalación de TV por cable y Teléfono
- Conexión a tierra en toda instalación y disyuntor diferencial en cada una de las unidades
- Gritería FV en baños y monocomandos en cocina
- Sanitarios Rocca línea Mónaco
- Instalación de Agua realizada en hidro 3 y desagües en Awaduc (Ind. Saladillo)
- Pisos y revestimientos cerámicos esmaltados de 1º calidad